•Project 1: Embo Part Mid-Smart-Living Estate estimated R59+million revenue- Equity funding mobilization
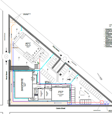
•Project 2: Shopping Complex with Retail Supermarketsestimated R56+million revenue- Equity funding mobilization
•Project 3: Glory “Smart City” Estate with 4.5* Hotel, estimated R62+million revenue- Equity funding mobilization
•Project 4: Fuel Station & 4* Guest Lodge estimatedR103+million revenue- Equity funding mobilization

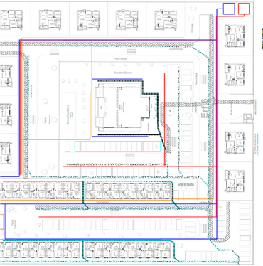
Mixed-Use Development
Scope: (1)Township Proclamation; (2) Internal Civil services: (2) Bulk link lines if applicable ; (3) Top Structures (residential units & conference/wedding venue)
Status- Stakeholder Engagement & Contractual Agreement

Hospitality
Social Amenity Venue:
•Wedding/Conference venue with a 500-700-delegate capacity
Target Market:
•Individuals•Event organizers, and •Corporate retreats

Residential Estate
12 x Three-Bedroom Single Storey Houses
•Floor Area: ±195 m² each•Suitable for small families and professionals
40 x Two-Bedroom Rental Apartments
•Average Unit Size: ±90 m²•2-storey walk-up design (8 blocks of 5 units each)•Designed for student rentals, young professionals, or long-term leasing












Mixed-Use Development
Scope: (1)Township Proclamation; (2) Internal Civil services: (2) Bulk link lines if applicable ; (3) Top Structures
Status- Stakeholder Engagement & Contractual Agreement

Commercial Hub
Shopping Complexes:
•Clothing store e.g PEP
•Food Retailer e.g USave
•3xFood Outlets e.g KFC, Fish & Chips, and Pizza
•Small Food Retailer e.g Fruit & Veg

Target Market:
•Business travelers,
•Tourists,
•SMMEs-local economies







Hospitality & Commercial Hub
4.5 Star Hotel:
•120 guest rooms
•Integrated 80-seater restaurant
•Coffee and cocktail bar
•Conference venue with a 400-delegate capacity
Target Market:
•Business travelers,
•Tourists,
•Event organizers, and
•Corporate retreats

Residential Estate
10 x Four-Bedroom Double Storey Houses
•Ground Floor: ±163 m²
•First Floor: ±108 m²
•Total: ±271 m² per unit
•Secure gated cluster format with shared open space

Wellness & Lifestyle Facilities
•Gymnasium:
⚬Floor Area: ±650 m²
⚬Capacity: ±160 users
⚬Equipped with cardio and strength zones, showers, lockers
•Body Therapy:
⚬Spa & Massage
⚬Sauna
⚬Steam room
•Green Open Spaces & Internal Roads:
⚬Landscaped parks, internal jogging trails, children’s play areas
⚬Safe internal vehicular and pedestrian circulation










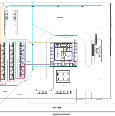
Mixed-Use Development
Scope: (1) Internal Civil services: (2) Bulk water & sewer link line & stormwater channel ; (3) Top Structures
Status- Equity Partner Mobilisation

Fuel Station:
•Light Vehicle Fuel/Pump Station
•Heavy Vehicle Fuel/Pump Station
•40-bedroom 4 star Guest Lodge
•Vehicle mechanical service station
•24/hr Brand Convenience Store with restaurant and ablution facilities

Target Market:
•Business travelers,
•Tourists,
•Event organizers, and
•Corporate retreats
Copyright © 2026 Gideon Property Developers - All Rights Reserved.
Powered by Grapeware Technologies
We use cookies to analyze website traffic and optimize your website experience. By accepting our use of cookies, your data will be aggregated with all other user data.